小戶型的大問題
2017/05/09來源:美家美戶作者:美家美戶
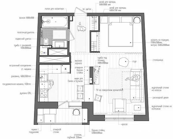
房子的形狀是一個角度不大的梯形,所以為了不讓每一個房間過分的不規則,盡量減少隔斷。除了陽臺與衛生間,其他的房間都選擇開放。鮮活的顏色與白色搭配,適合年輕人的審美。巧妙的儲物設計,輕便的家具,讓活動的范圍更顯寬敞,也多了一些舒適。
轉載聲明:本文內容及圖片版權美家美戶家居傳媒為雜志所有,未經正式書面授權不得以任何形式轉載或使用






















粵公網安備 44030302001606號